-
LocationVinh Ky, O Dien, Ha Noi
-
Year2019
-
Area116 m²
-
StatusConstruction
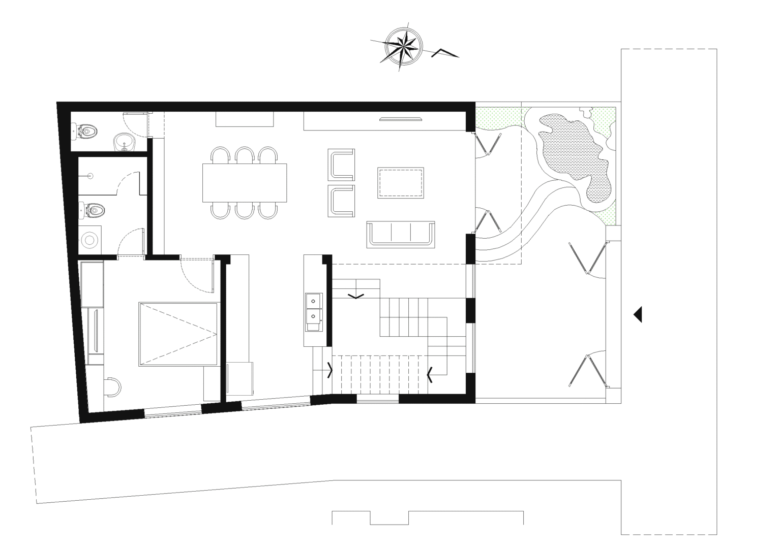
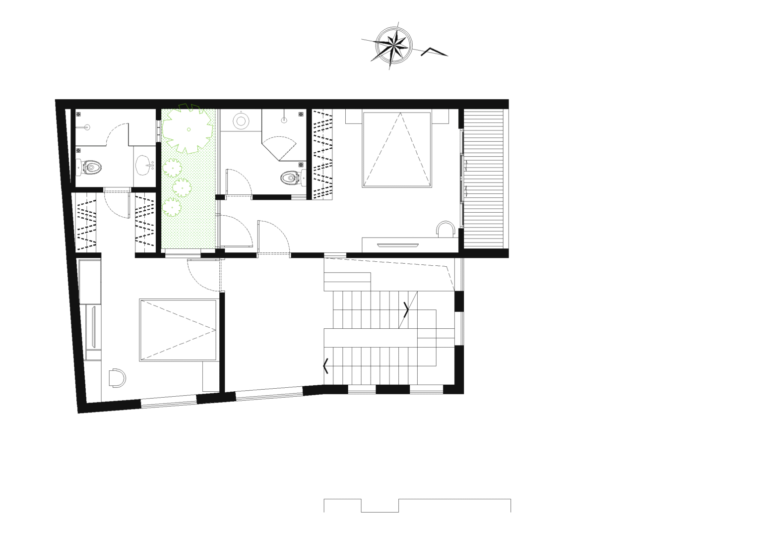
The original two-story house with a rooftop attic had been built long ago and had become both degraded and inefficiently organized—for example, the entire second floor had only one small bathroom, and the spaces felt disconnected.
During the renovation, we retained the existing structural frame but added a new staircase core and built an additional floor. This allowed for more functional spaces, such as a gym, a separate kitchen area, and a larger, dedicated worship room.
The redesigned house now features a spacious living and dining area, a generous staircase and landing zone, en-suite bathrooms for all bedrooms, and even a small internal garden on the second floor.
This renovation brought about a fresh, vibrant transformation, offering the client a completely new and uplifting living experience.







