-
LocationPhu Nam An, Chuong My, Ha Noi
-
Year2020
-
Area192 m²
-
StatusConstruction
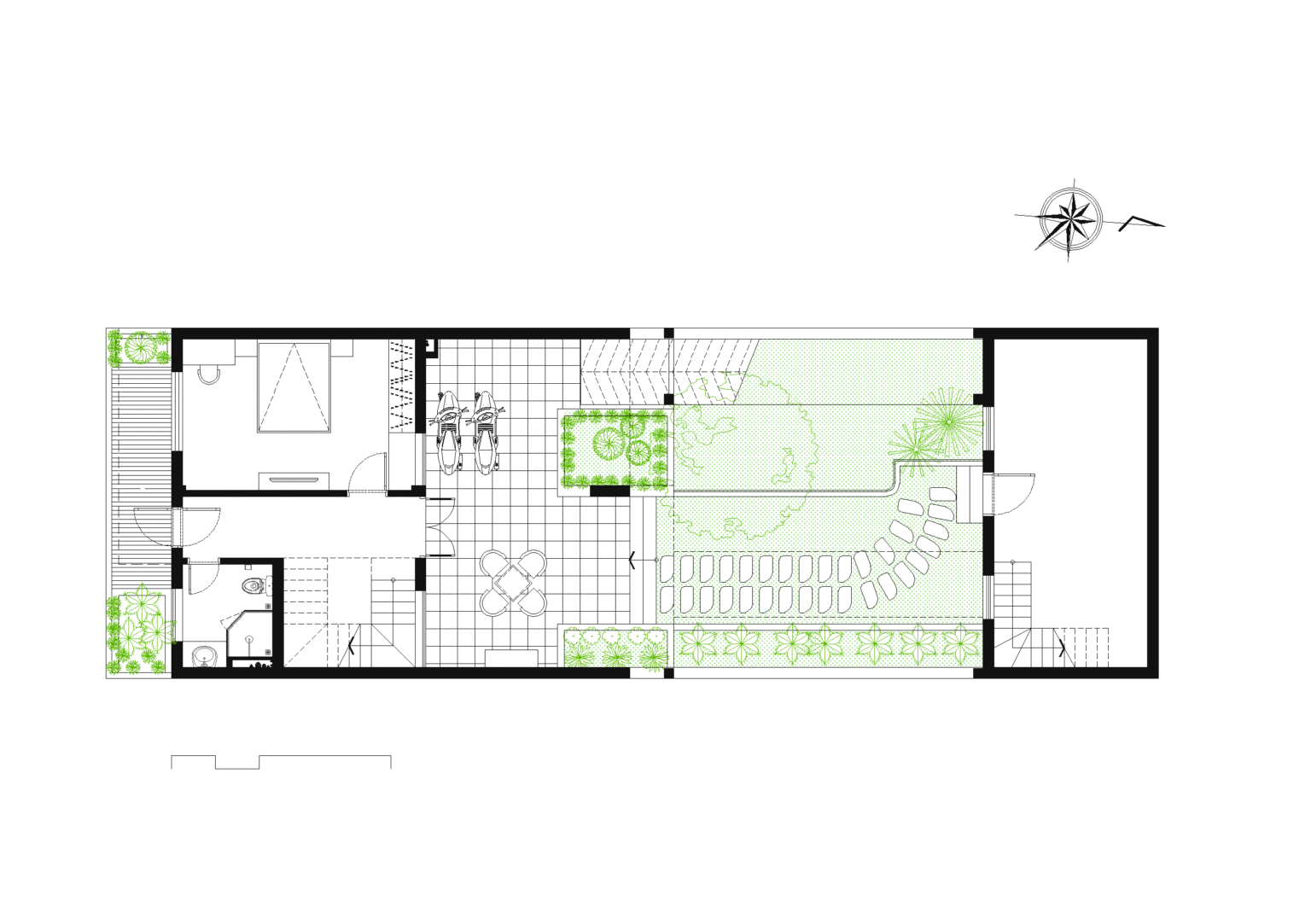
Originally, the old house was very small, located right next to the dike, with the ground floor and backyard lying below its base. The house held many cherished memories, so when the opportunity came to build a new one, the client asked to preserve the original structure.
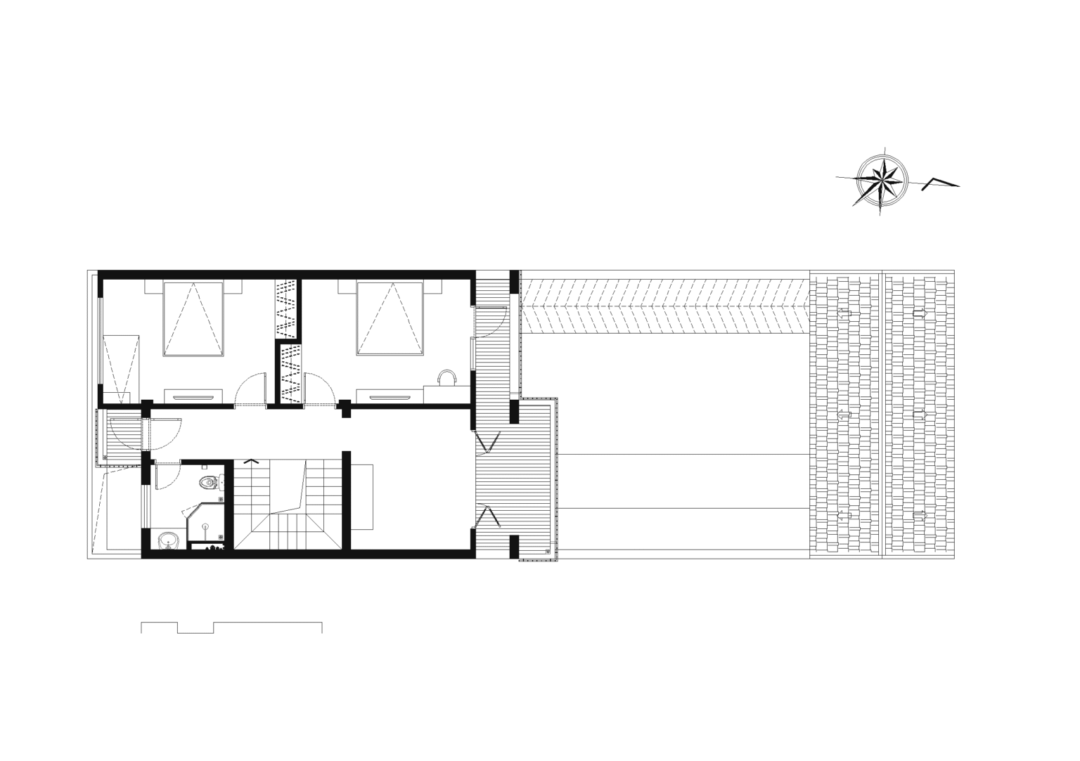
We responded by designing a new three-story building on the garden space and created a bridge on the second floor to connect it with the old house. The proposal features a simple and calm architectural language—with a front veranda for tea, a courtyard for planting flowers and greenery, and well-ventilated rooms with pleasant views.
It truly became a peaceful sanctuary for the entire family.







