-
LocationTan Lap, O Dien, Ha Noi
-
Year2022
-
Area200 m²
-
StatusConstruction
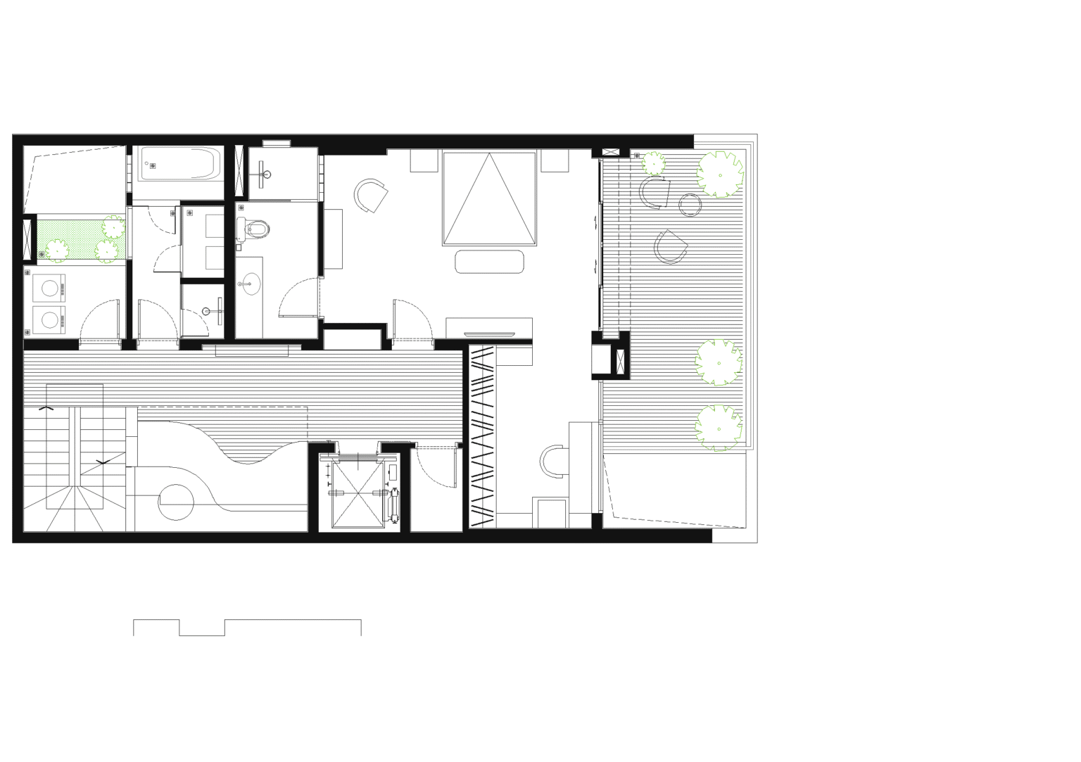
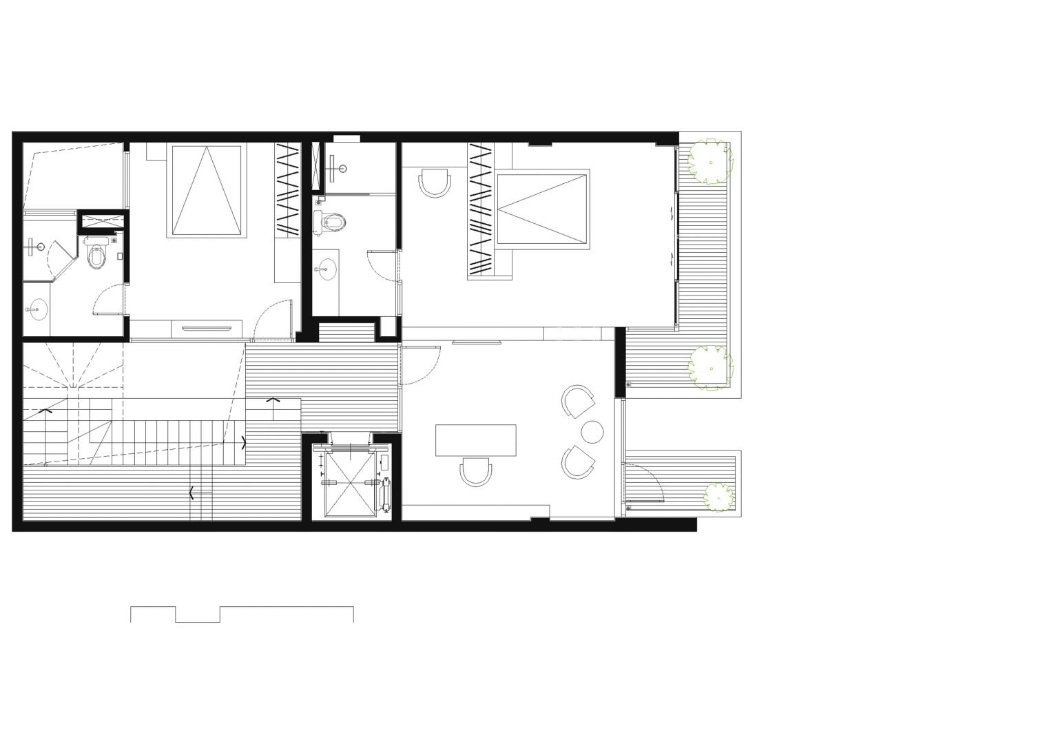
This project was carefully discussed, designed, and executed to meet the client’s desire for both luxury and comfort.
The spaces were designed with an open layout to create a sense of spaciousness and offer multiple attractive viewpoints. With its modern, striking architecture, well-planned functionality, and high-quality finishes, the house has become a true home—“a place you always want to return to,” as the homeowner shared.























