-
LocationNguyen Trai Street, Bac Ninh City, Bac Ninh
-
Year2021
-
Area117 m²
-
StatusDesign
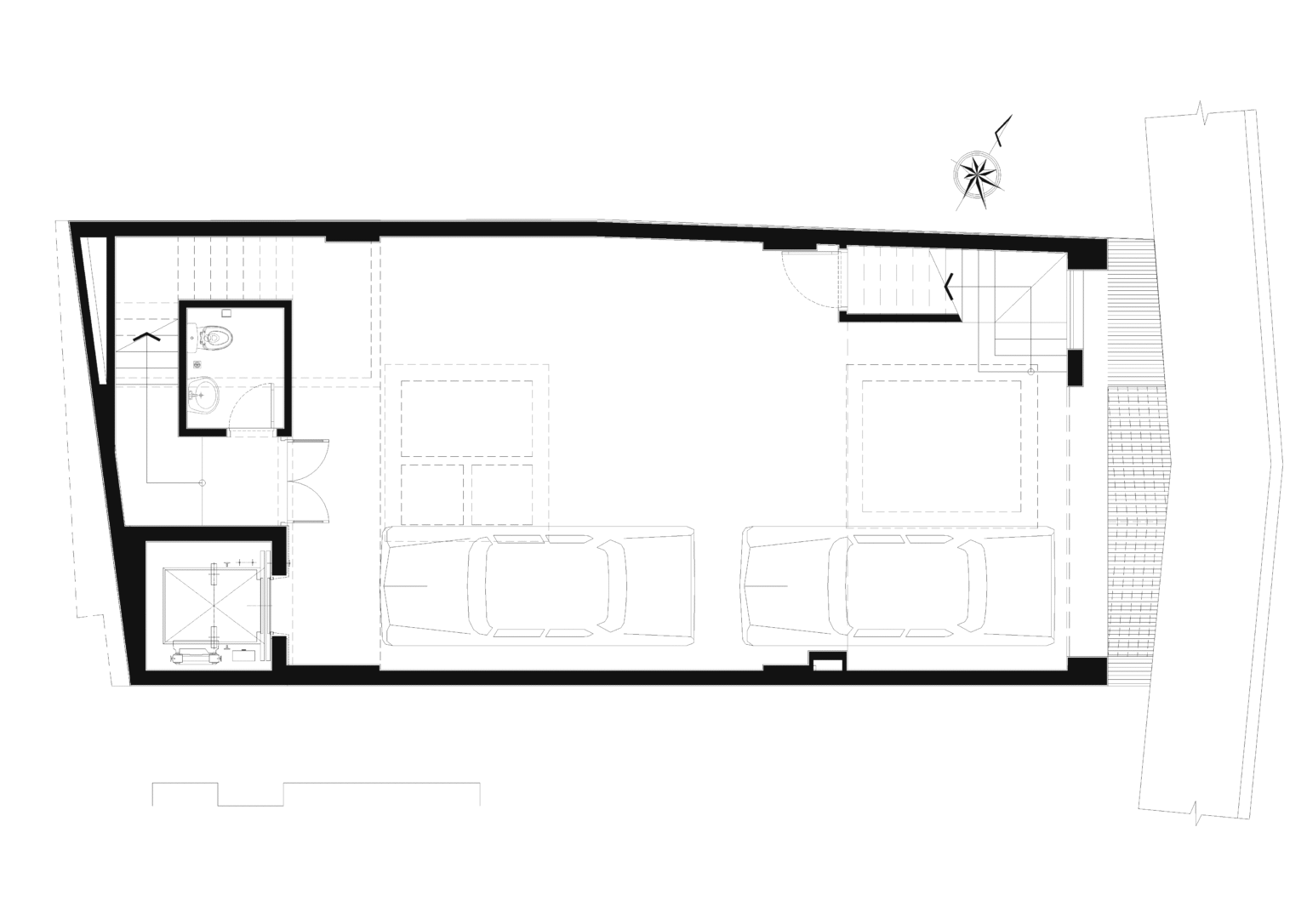
This is a mixed-use building located on a major old street in Bac Ninh City. The ground floor is designated for parking, two floors for commercial use, and the upper levels for residential living.
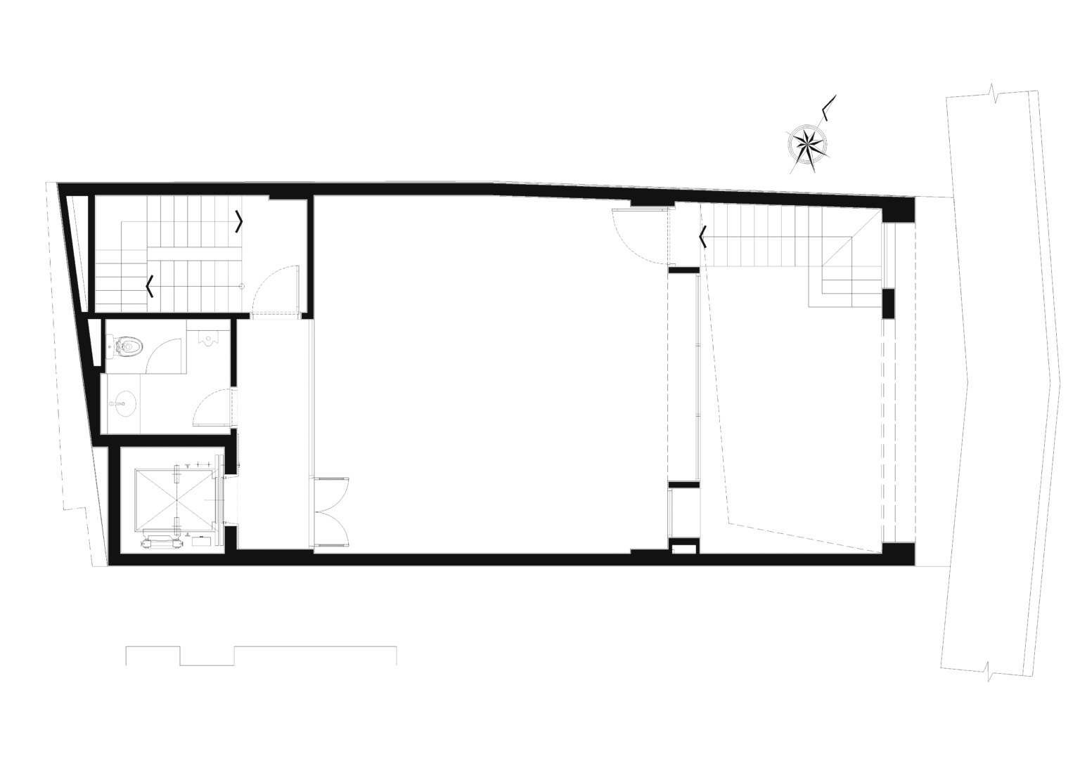
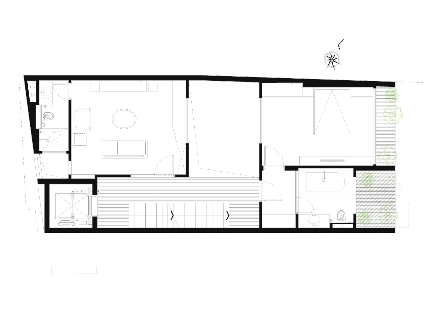
To ensure separation between commercial and residential areas, we designed an independent staircase system for the commercial floors and controlled elevator access. The circulation core is positioned at the rear of the site to maximize retail space.
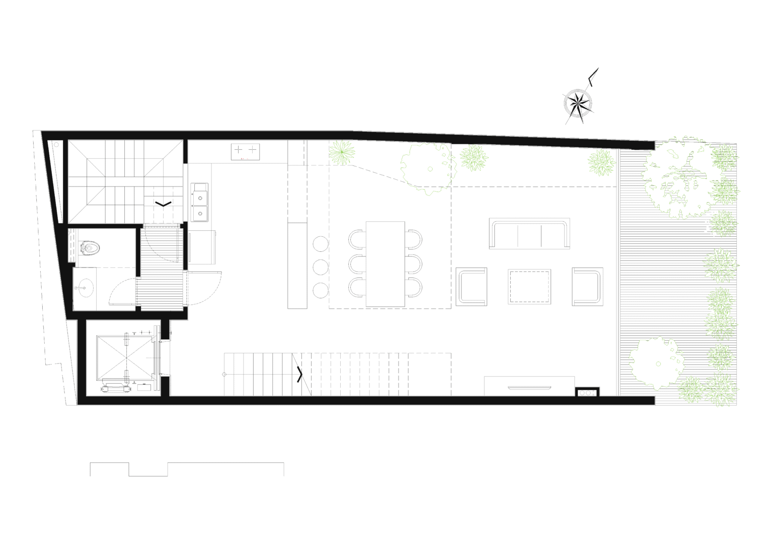
The residential area features an open layout centered around a large internal courtyard with greenery, which is directly connected to the family’s shared living space. Outside, a spacious balcony with a variety of plants provides an outdoor retreat.
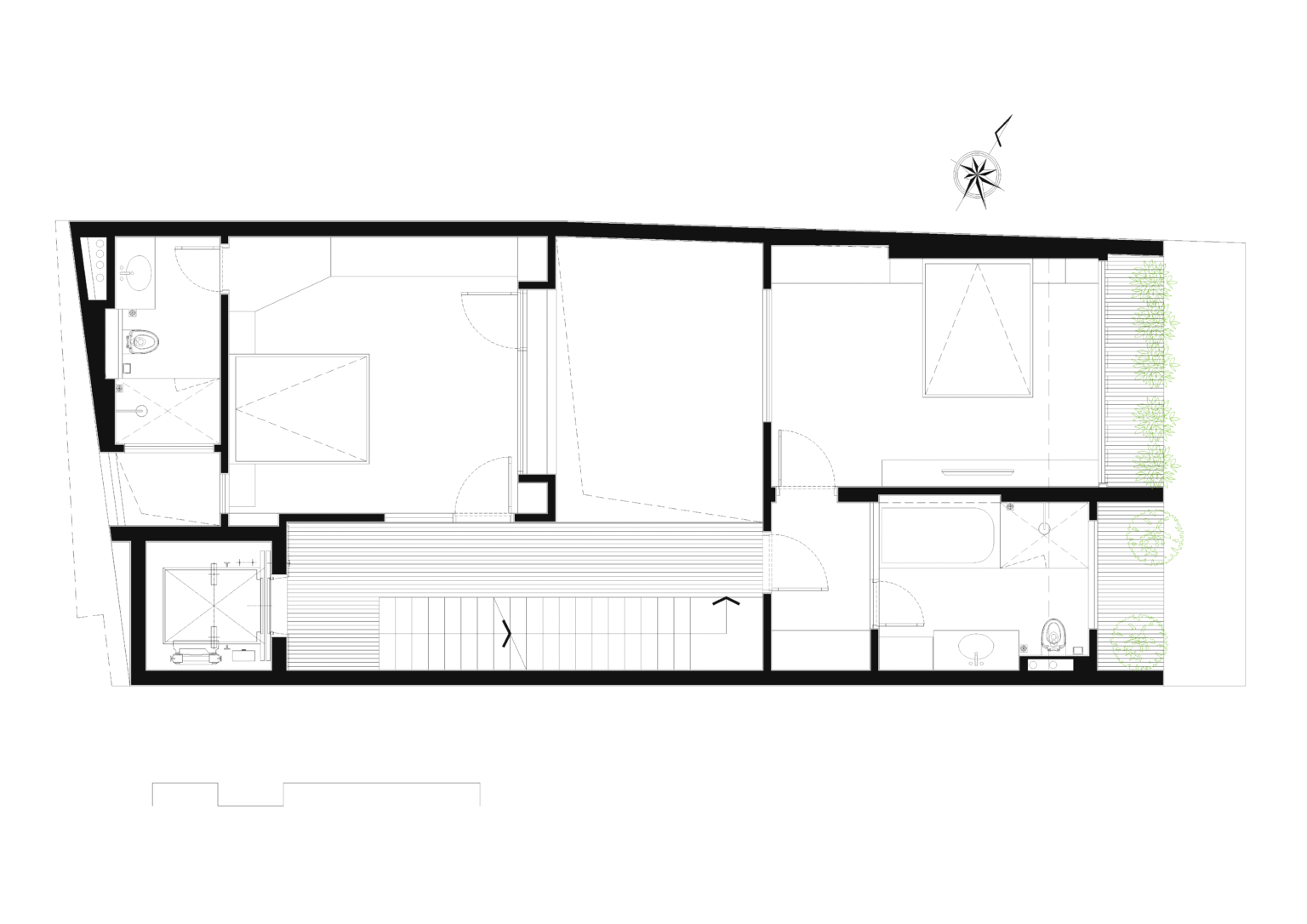
The bedrooms overlook the central lightwell and include en-suite bathrooms for convenience. On the top floor, a worship room and a rooftop garden filled with diverse plants offer a serene space for relaxation and enjoying views of the neighborhood from above.














