-
LocationDong Anh , Ha Noi
-
Year2012
-
Area408 m²
-
StatusDesign
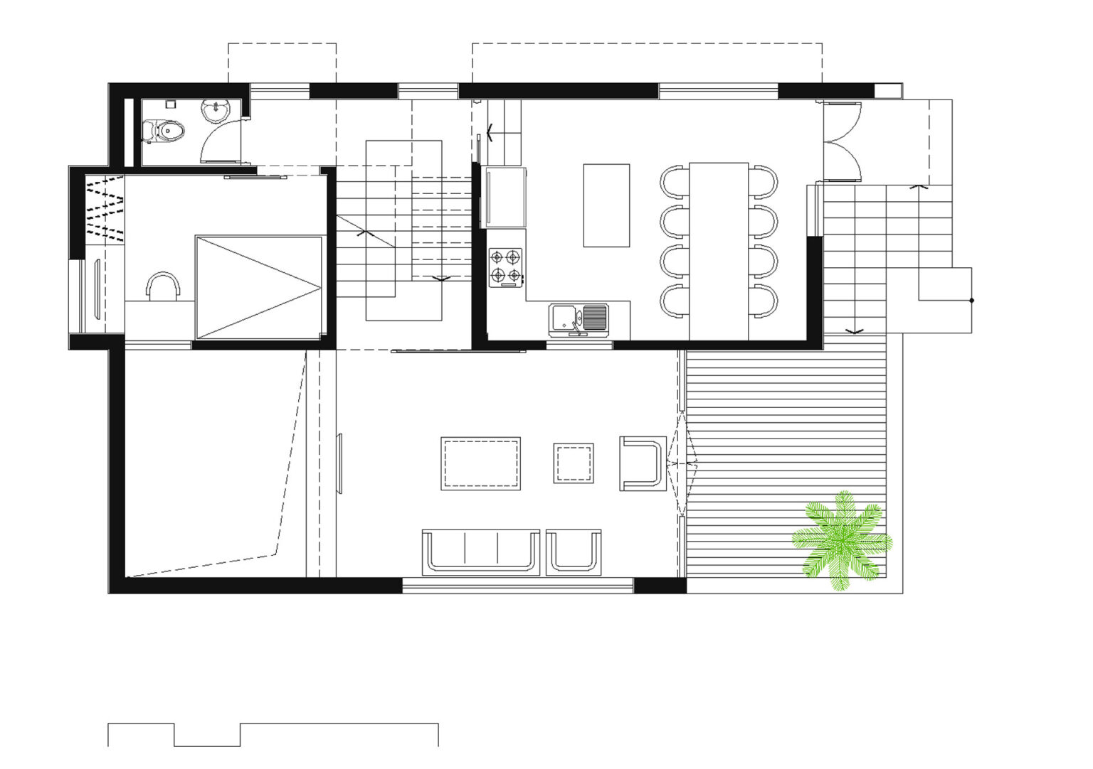
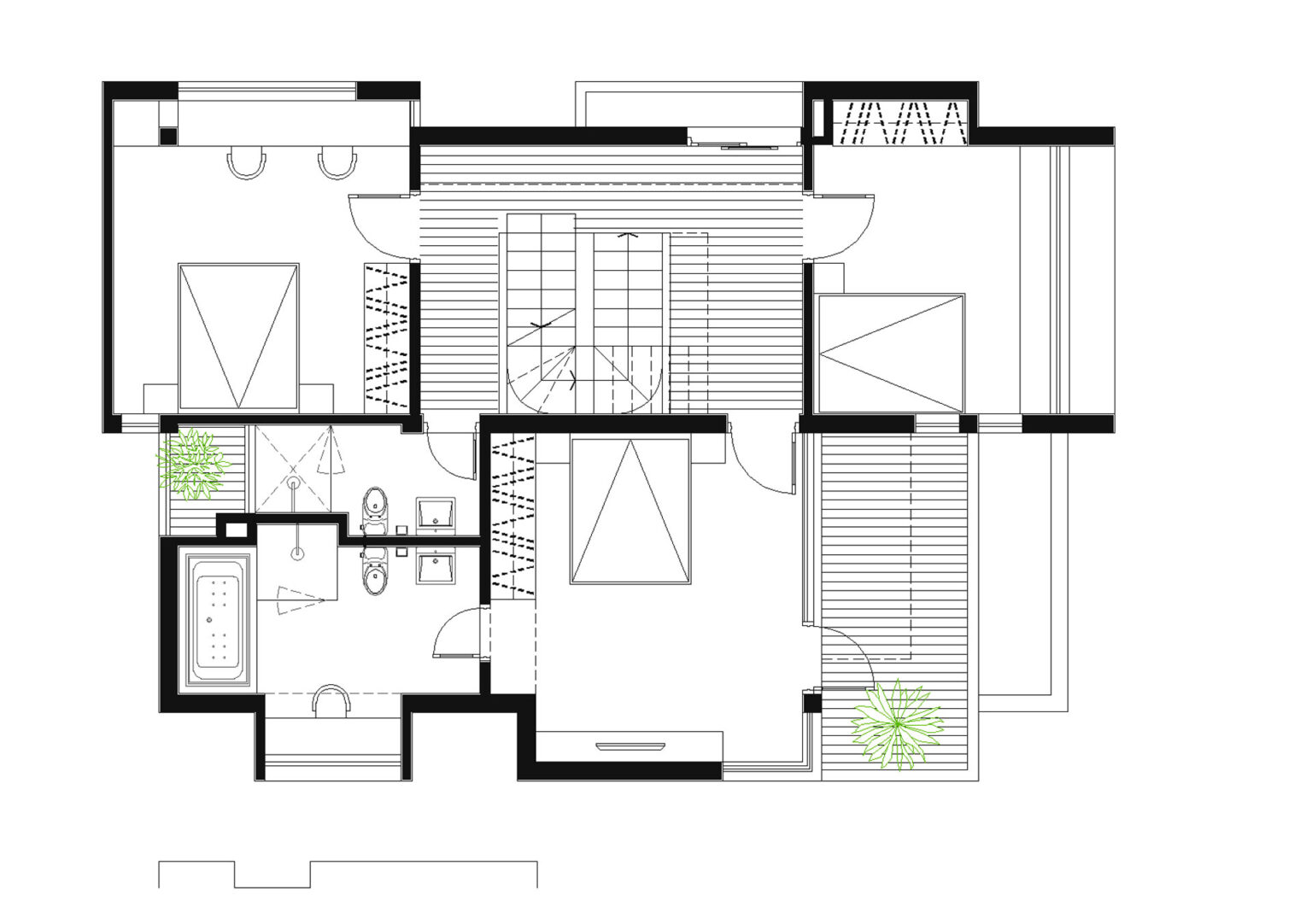
Situated in a relatively quiet area, the villa was designed to fully accommodate a multi-generational family. In addition to the main living functions, the ground floor includes a bedroom for the grandparents, adjacent to a veranda filled with greenery. The design emphasizes simplicity—from overall form to details—avoiding ornate elements while maintaining dynamic shapes that offer interesting perspectives both inside and out. Greenery is thoughtfully integrated throughout the house. The layout was carefully studied to ensure comfort and a sense of luxury for the client.












