-
LocationPhu Thuong , Ha Noi
-
Year2019
-
Area108 m²
-
StatusConstruction
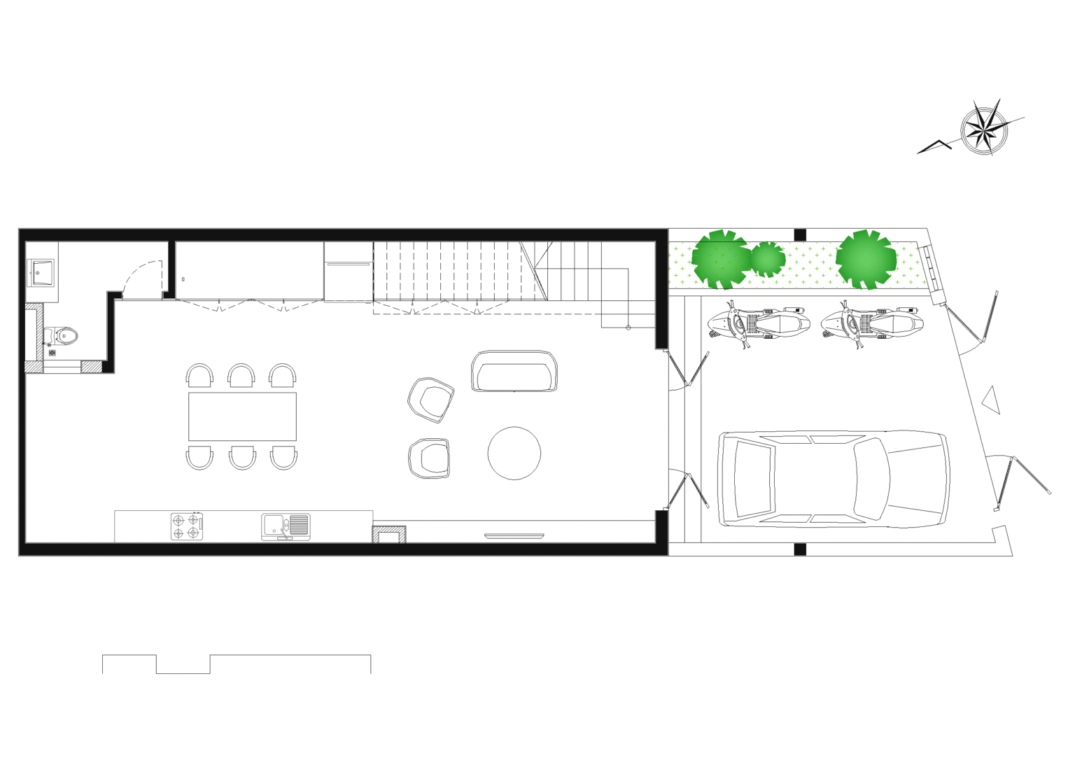
As a typical tube house with a Southwest-facing facade—receiving intense sunlight especially during summer—we proposed using a ventilated brick wall at the front to create a buffer zone. This helps prevent the rooms from being exposed directly to the exterior.
The solution also allows the house to “breathe” better and contributes to a more dynamic and distinctive architectural appearance.







