-
LocationThuy Hoi, O Dien , Ha Noi
-
Year2020
-
Area192 m²
-
StatusConstruction
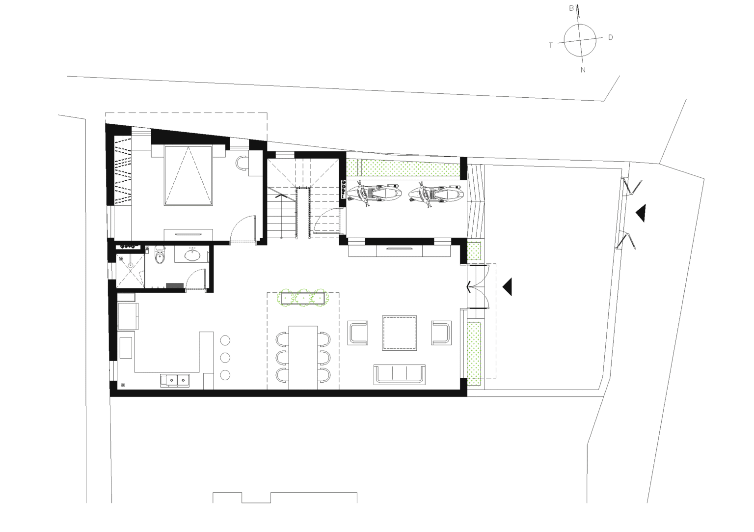
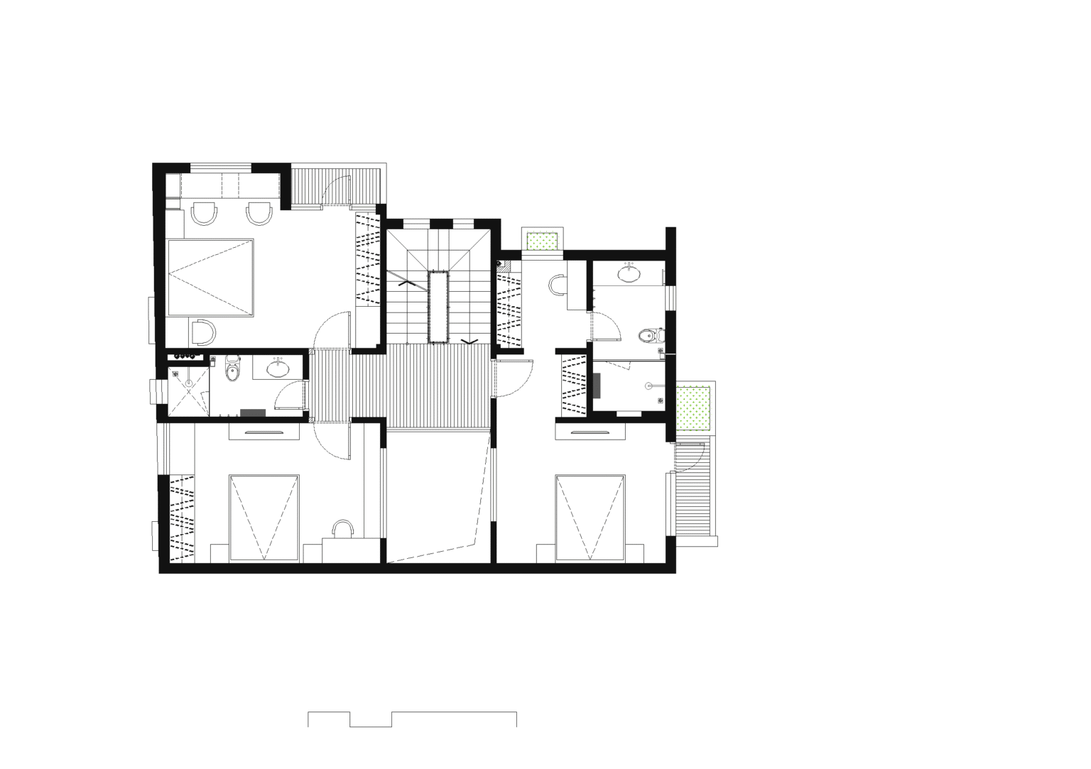
The client requested a comfortable and cozy home—a welcoming place to return to, with a spacious ground floor living area that could accommodate multiple tables for family gatherings, and a large kitchen.
Though the house wasn't meant to be elaborate, it needed to be neat, well-organized, and convenient for daily use.
Through close collaboration with the client, we proposed a design with a tightly organized layout, creating vibrant and engaging spaces that contribute to a peaceful and fulfilling family life.







