-
LocationThuan Thanh II Industrial Park, Thuan Thanh, Bac Ninh
-
Year2016
-
Area1,450 m²
-
StatusUnder construction
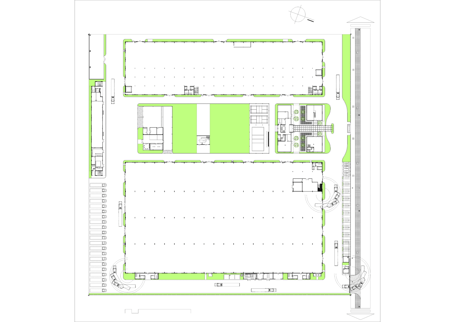
Facing high growth demands, Sơn Hà Household Group required the design of a large, unified factory complex on a 5-hectare site.
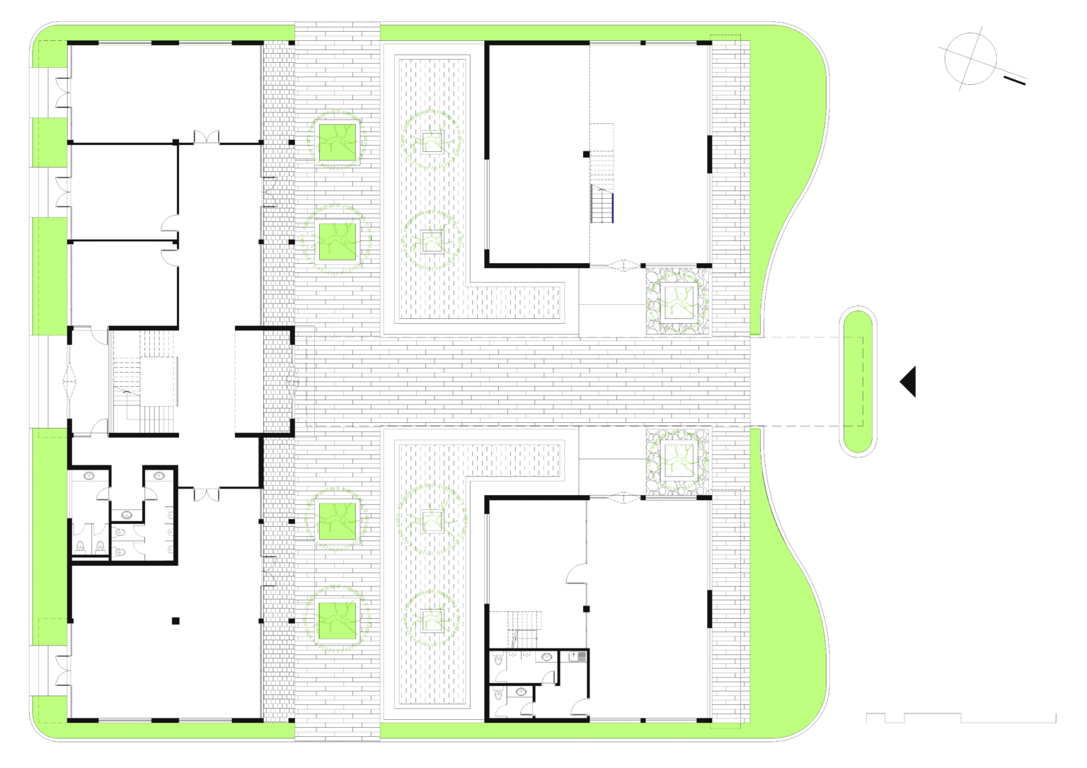
The office compound needed to meet multiple criteria within this development plan — with a scientifically organized layout that ensures efficient operations among numerous management, executive, and production departments.
At the same time, the building had to present a strong visual identity to enhance the brand image while aligning with sustainable development goals.
We proposed an open design concept, with functional blocks arranged around a central courtyard to create a green, airy, and welcoming environment.
The architectural form draws inspiration from the stylized shape of traditional roofs, reinterpreted through a modern language — aiming to evoke a sense of familiarity and comfort, like being at home.
















