-
LocationHa Long , Quang Ninh
-
Year2016
-
Area114 m²
-
StatusConstruction
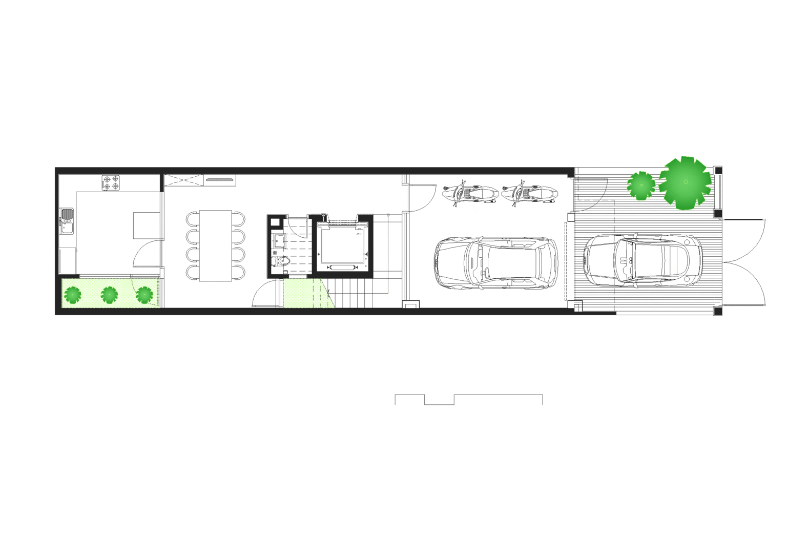
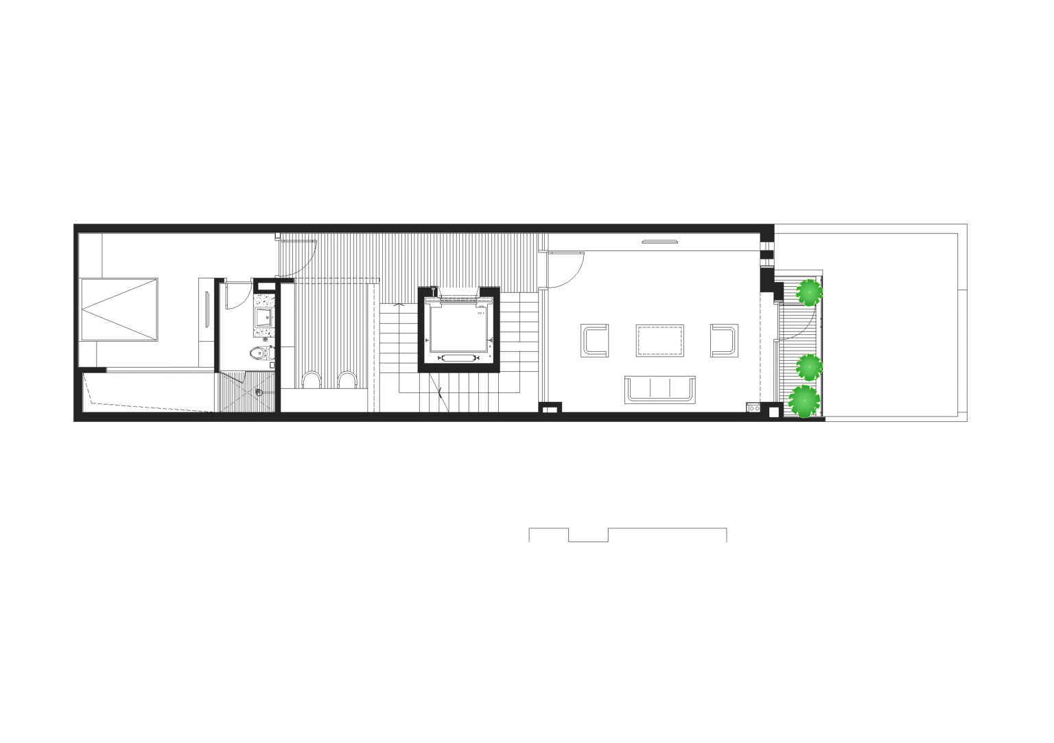
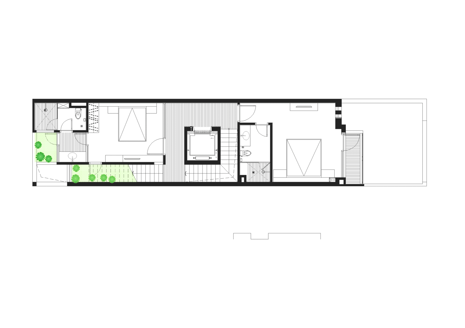
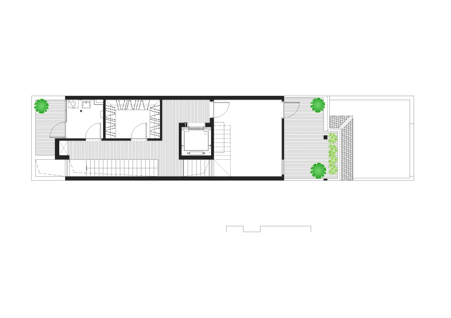
This project involved the renovation of a pre-built townhouse. We aimed to minimize the typical narrow and cramped feeling of a tube house—especially with the addition of an elevator—by creating “open” visual perspectives in various locations. Even the staircase layout was altered, rather than kept in a fixed, conventional position. We minimized closed-off wall surfaces and added transitional buffer spaces.
Each bedroom was designed with a different approach on each floor.
With well-considered comfort, open views, and several small garden patches, the house feels both pleasant and full of character.







